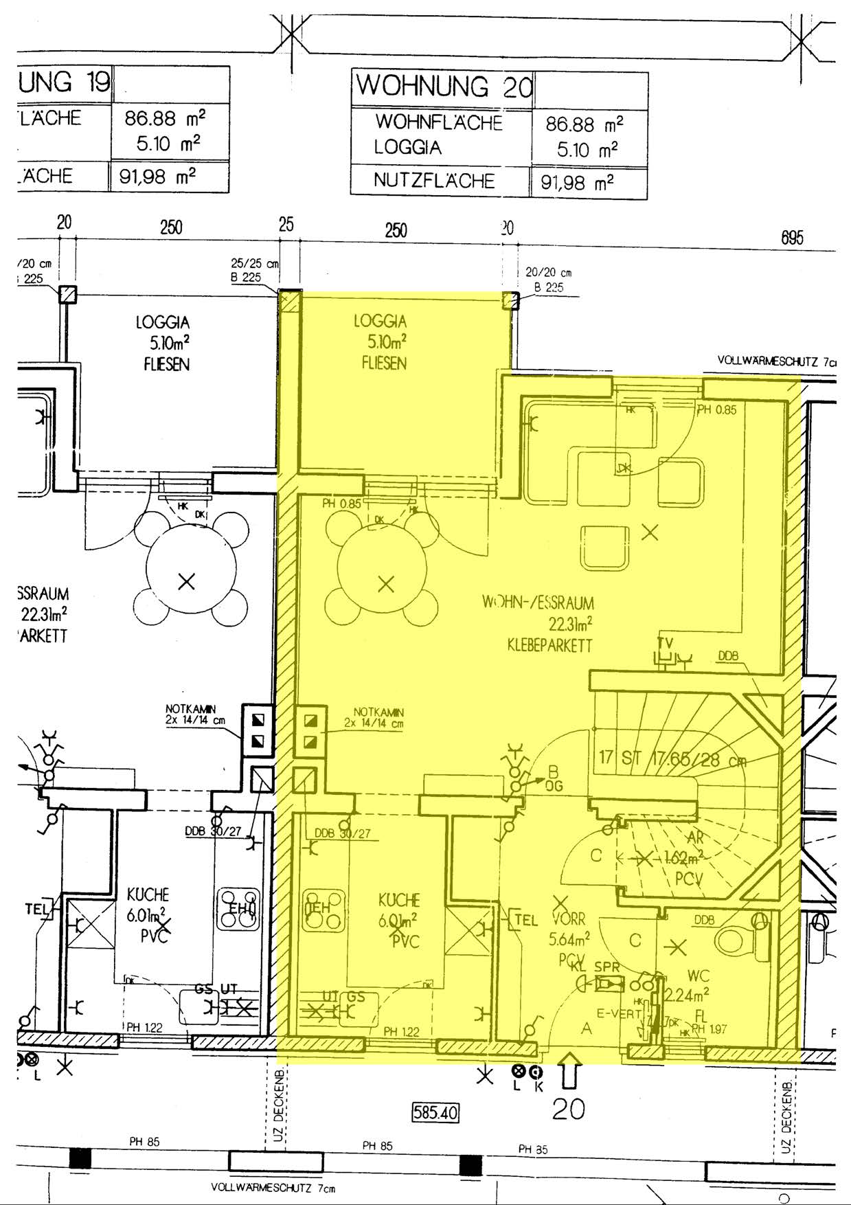
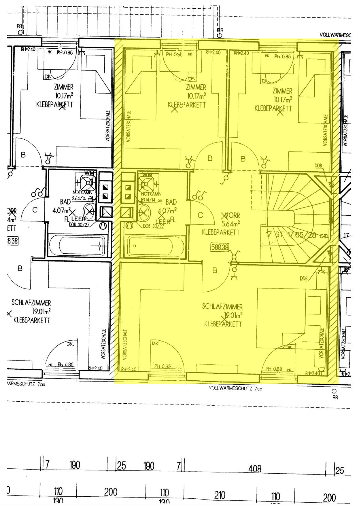
Fläche
Stockwerk
Heizung/ Heizwärmebedarf
Verfügbarkeit
Ausstattung
Lage
Notwendige Einrichtungen des täglichen Bedarfs (Kindergarten, Schulen, Ärzte, Einkaufsmöglichkeiten) sind fußläufig in ca. 10 Min. zu erreichen.
Der Schilift Freistadt befindet sich in unmittelbarer Nähe.
Monatliche Gesamtbelastung:
Gesamtmiete: € 977,8 (inkl. Betriebskosten)
TG-Stellplatz: € 55,48
Gesamtbelastung: € 1.033,28
Kosten für Heizung und Strom sind in der Gesamtbelastung nicht enthalten!
Küche vorhanden – Ablösevereinbarung mit dem Vormieter. Eine Ablöse ist seitens der WSG nicht zwingend vorgeschrieben!
Offene Fragen?
Wir Freuen uns auf ihren Anruf.
© 2021 WSG
